預售屋客變服務說明
一、什麼是客變?
客變指得就是住戶變更,是指在預售屋或新建案尚未完工時,根據住戶的需求,對房屋的部分或配置進行變更和調整,讓住戶對房屋可以符合自己的配置需求,以達到實用和功能兼備的居住空間。二、 找設計師客變的優勢
專業知識與經驗:
專業的室內設計師擁有深厚的設計知識和經驗,能夠提供關於空間利用、材料選擇及色彩搭配的專業建議。提升居住質量:
室內設計師能夠根據客戶的生活習慣和喜好設計內部空間。這不僅能夠提升日常生活的舒適度和便利性。節省時間和避免常見錯誤:
選擇材質和風格可能是一個繁瑣且容易出錯的過程。室內設計師不僅可以協助建議選擇出最適合的材質,還可以避免在設計和施工過程中常見的錯誤。獨特性與個性化:
室內設計師能夠創造符合個人品味和風格的獨特空間,使得居住環境更具個性化和創意。專業客變過程:
室內設計師會與建商確認,確保客變內容無誤執行,已達到最終的成果與客戶的期待相符合。三、預售屋客變服務
皇室空間設計提供預售屋客變服務,提供專業的評估、設計,幫助住戶在預售屋階段實現個人化的居住需求。透過皇室空間設計的專業團隊,客戶可以在房屋交屋前進行變更,打造理想居住空間。
四、服務對象
預售屋的服務對象主要是自住或投資者,可分為:
首次購房者:
年輕或剛開始獨立生活的人,看重預售屋的相對較低入市門和潛在的價值增長。
長期居住者:
購買永久居住的個人或家庭。會特別注重房屋的建造質量、社區環境和周邊設施。
投資者:
房地產市場投資的人,會在建設早期階段購入預售屋,期望未來的市場價值性。
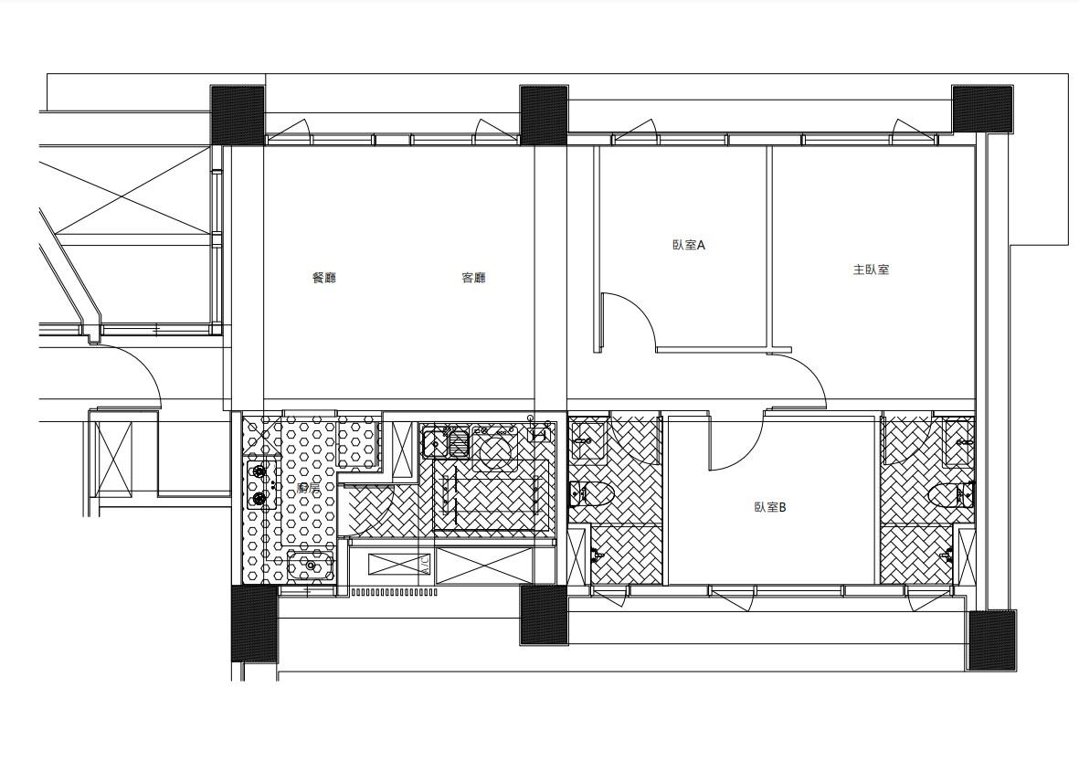
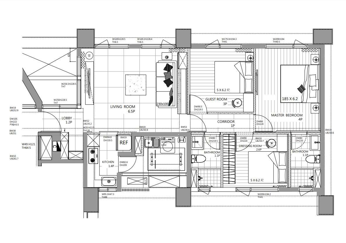
五、客變項目
空間格局變更:如房間隔間調整,隔間改成半開放變更。
電器配置變更:電源插座位置、燈具配置及其他電氣設施的調整。
建材變更:地板的材質選項。
衛浴廚具:選擇自己喜歡的設備與風格調整。
六、客變流程
➤ 1. 提供建商CAD電子檔案
➤ 2. 需求討論
➤ 3. 繪製平面配置
➤ 4. 確認圖面,簽立客變合約
➤ 5. 決定委託客變規劃,簽立客變合約,不可折抵工程款
➤ 6. 客變費用$3000/坪